Баня Квадро-Хаус «4х2»
564 990 ₽
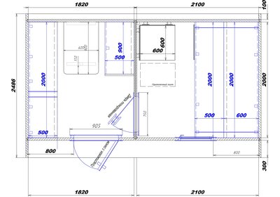
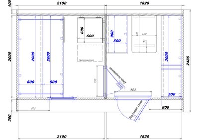
Баня Квадро-Хаус «4×2» имеет два больших помещения и с легкостью может разместить компанию. За счет формы баня обеспечит быстрый прогрев помещений даже зимой. Баня устанавливается краном-манипулятором в собранном виде или собирается на участке за два дня.
-
Рассчитайте комплектацию и стоимость
Вы можете сделать точный расчет стоимости бани и сделать заказ самостоятельно. Нажмите на каждый пункт для выбора опций.
Выберите материал
Выберите планировку
Выберите тип печи
-
Grill'D Bochky Short
В базовой комплектации. Grill’D Bochky Short с внутренней топкой. Загрузка - 40 кг камней. Сталь повышенной прочности
-
Печь не выбрана
Дополнительно к печи
-
Баки и опции
-
Сетка для камней L700 с камнями. В базовой комплектации бани.
-
-
Выберите окна
-
Без окна
-
Окно 600х600
Выберите окна для установки в стене бани
-
-
Выберите межкомнатную дверь
-
-
Выберите входную дверь
-
Деревянная дверь 1640x605мм с окошком правая (петли справа)
-
-
Выберите дополнительные опции
Теплый пол
Для обогрева используется инфракрасная система с защитой от перегрева, обеспечивающая быстрый и равномерный нагрев. В качестве напольного покрытия применяется кварц-виниловая плитка (SPC) с текстурой натурального дерева, отличающаяся повышенной износостойкостью и эстетичным внешним видом. Для максимальной энергоэффективности монтаж выполняется на специальную теплоизолирующую подложку. -
-
Цвета кровли
- +
- +
- +
-
Светодиодная подсветка полков
-
Индивидуальные изменения
-
Reset options
*Выберите комплектацию
-
Выберите цвет внешней обработки и количество слоев
Количество слоев внешней обработки
Цвет внешней обработки
Цвет торцов и наличников
Описание
- Еловый или кедровый профиль толщиной 42х92 мм, влажностью 10%
- Основание под баню из поперечных лаг 50×150 мм с возможностью последующего утепления (в случае не использования проливных полов)
- Пол из доски с возможностью замены
- Внешняя обработка антисептиком в один слой (при поставке изделия в готовом виде или со сборкой на участке)
- Крыша из гибкой черепицы Döcke PIE или Технониколь до самого низа. Цвет коричневый

- Дровяная печь Grill’D Bochky Short
- Пожаробезопасное многослойное основание-сэндвич под печь из нержавеющей стали, минерита и базальтового картона
- Защита от нагрева из минерита
- Камни для печи (в подарок)

- Дымоход в сборе
- Проходной узел под дымоход из нержавеющей стали, термоизоляции, резинового уплотнителя с хомутом

- Входная дверь деревянная 1640×605 мм с окном
- Стеклянная тонированная дверь в парилку
- Проливные полы на лагах с уклоном в сторону от печи из доски с возможностью замены
- Четыре сливных отверстия в нижней точке, закрываемые клапанами. Отверстия между собой соединены фрезерованным в полу пазом глубиной 10 мм
- Угловой полок из липы или осины
- Трапики на пол из ели
- Окно 600х600 мм (стеклопакет) с открыванием вовнутрь
- Светильник банный IP54
- Проливные полы на лагах (возможен уклон) из доски с возможностью замены
- Два собранных полка из липы или осины
- Трапики на пол из ели
- Стол
- Светильник банный IP54
- Розетка
- Выключатель
Детали
| Количество помещений | 2 |
|---|---|
| Длина козырька/крыльца | 100 мм |
| Общая длина (наружный размер) | 2386 мм |
| Высота | 2755 |
| Ширина | 4060 мм |
| Вес | 1520 кг |
